Liz Corrigan Branham, J.D. Presents
Exceptional Richmond Three Level Home
783 23rd Avenue, San Francisco
|$2,595,000
All Property Photos
Property details
Bedrooms
4
Bathrooms
3.5
Square Feet
2,834 sq ft
Neighborhood
Central Richmond
RARELY AVAILABLE
San Francisco Gem
San Francisco Gem
Located steps from Golden Gate Park on one of the Richmond’s most coveted blocks, this classic, thoughtfully updated three level home combines warmth, timeless elegance, and modern comfort. Its highly desirable layout, charming period details, fresh interior paint, and generously sized rooms create a move-in-ready residence perfect for today’s city lifestyle.
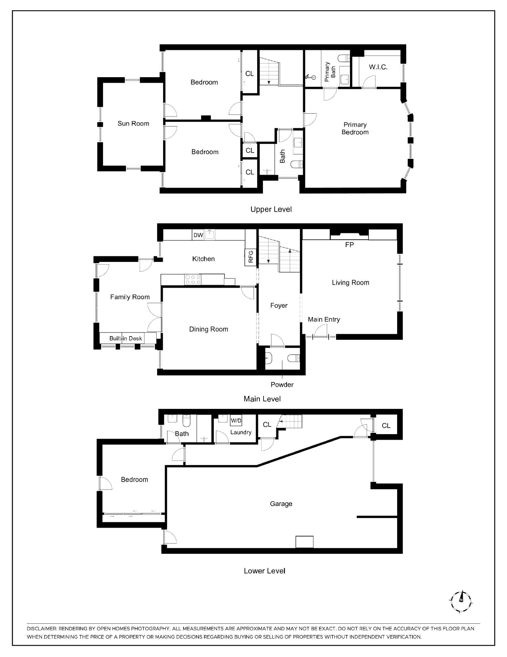
On the main level, the inviting living room showcases a gas fireplace, abundant built-ins, and a peek-a-boo view of the Golden Gate Bridge. A gracious foyer with powder room flows into the banquet-size formal dining room, leading to a bright family/breakfast room and sizable walk out deck, which overlooks the verdant backyard. The modern kitchen offers granite countertops, Heartwood cabinets, Viking six burner gas range, Viking refrigerator, Bosch dishwasher, bonus wine fridge, and direct stairs to the garden. Ascend the sky lit stairwell to discover the luxurious primary suite with spa shower and walk-in closet, two more spacious bedrooms, full bath, and a bright sunroom with views in three directions. The lower level offers a flexible guest suite or home office, full bath, laundry room with stacked washer/dryer, abundant storage, and direct access to the beautifully landscaped yard with blueberry bushes, plum, apple, and cherry trees. A spacious two-car tandem garage completes the home.
This home underwent an extensive renovation in 2012, and more recent upgrades include: interior paint (2025), water heater (2023), exterior paint (2022), roof replacement (2021), furnace (2019), adding air conditioning unit (2019).
Set along a charming tree-lined median, this block of 23rd Avenue is close to the park’s abundant walking trails & picnic spots, the Academy of Sciences, De Young, Botanical Garden, Geary and Clement Street amenities, public transit, and so much more.
Rarely available and undeniably special, this is a unique opportunity not to be missed!
On the main level, the inviting living room showcases a gas fireplace, abundant built-ins, and a peek-a-boo view of the Golden Gate Bridge. A gracious foyer with powder room flows into the banquet-size formal dining room, leading to a bright family/breakfast room and sizable walk out deck, which overlooks the verdant backyard. The modern kitchen offers granite countertops, Heartwood cabinets, Viking six burner gas range, Viking refrigerator, Bosch dishwasher, bonus wine fridge, and direct stairs to the garden. Ascend the sky lit stairwell to discover the luxurious primary suite with spa shower and walk-in closet, two more spacious bedrooms, full bath, and a bright sunroom with views in three directions. The lower level offers a flexible guest suite or home office, full bath, laundry room with stacked washer/dryer, abundant storage, and direct access to the beautifully landscaped yard with blueberry bushes, plum, apple, and cherry trees. A spacious two-car tandem garage completes the home.
This home underwent an extensive renovation in 2012, and more recent upgrades include: interior paint (2025), water heater (2023), exterior paint (2022), roof replacement (2021), furnace (2019), adding air conditioning unit (2019).
Set along a charming tree-lined median, this block of 23rd Avenue is close to the park’s abundant walking trails & picnic spots, the Academy of Sciences, De Young, Botanical Garden, Geary and Clement Street amenities, public transit, and so much more.
Rarely available and undeniably special, this is a unique opportunity not to be missed!
HIGHLIGHTS
- 4 Bedrooms
- 3.5 Baths
- 2 Car Tandem Parking
- Appx 2834 Square Feet Per Tax Records
- Home Underwent Extensive Renovation in 2012
- More Recent Upgrades Include: Interior Paint (2025), Water Heater (2023), Exterior Paint (2022), Roof Replacement (2021), Furnace (2019), Adding Air Conditioning (2019)
- Living Room with Gas Fireplace and Built Ins
- Spacious Formal Dining Room
- Modern Kitchen with Granite Counters, Heartwood Cabinets, Stainless Steel Appliances, and Wine Fridge
- Family/Breakfast Room with Direct Access to Spacious Deck + Stairs to Yard
- Three Bedrooms, including Primary Suite, Full Bath, and Sunroom All on Upper Level
- 4th Bedroom or Home Office on Lower Level with Direct Access to Landscaped Yard With Fruit Trees
- Laundry Room with Stacked Washer/Dryer, Wash Basin, and Storage
- Coveted Block of the Richmond with Tree Lined Median
- Close Proximity to Golden Gate Park, De Young, Academy of Sciences, Cafes , Shops and Amenities on Geary & Clement Streets, and Public Transportation
Property Tour
Floor Plans
Floor plan
Neighborhood
Central Richmond District: Where Culture Meets Convenience
Discover San Francisco's best-kept secret: a vibrant neighborhood where tree-lined streets meet world-class dining, and your front door opens to endless adventure.
Your New Lifestyle Awaits
Imagine stepping out your door to Golden Gate Park's 1,000+ acres right at your fingertips. Weekend mornings call for strolling or biking past the Japanese Tea Garden, smelling the flowers at the Botanical Gardens, afternoon picnics at Hellman Hollow, and cultural afternoons at the de Young Museum or California Academy of Sciences. When you're ready for recreation, Lincoln Park, Presidio Golf Course, Beach Chalet fields, and Ocean Beach are just minutes away.
A Foodie's Paradise
Central Richmond has quietly become one of the city's most exciting culinary destinations. Stroll down Geary, Clement, and California Streets to discover neighborhood gems like the intimate Pizzetta 211, elegant Aziza, buzzing Hong Kong Lounge, and authentic Fiorella. Or grab a quick burrito at Gordo’s Taqueria followed by a scoop at Joes’ Ice Cream. From casual weeknight dinners to special celebrations, your perfect meal is always within walking distance.
Classic San Francisco Living
These iconic Richmond row houses line peaceful, tree-canopied streets that epitomize San Francisco charm. The neighborhood's rolling hills offer stunning glimpses of the city while maintaining an intimate, residential feel that locals treasure.
The Perfect Location
With the Presidio's natural beauty to the north and Golden Gate Park's endless amenities to the south, you're positioned at the heart of San Francisco's most desirable outdoor lifestyle. Yet Stonestown, the Financial District, and all of the city's attractions remain easily accessible.
Come see why people love the Central Richmond: a charming and culturally vibrant community + gateway to a convenient and adventurous San Francisco lifestyle.
Discover San Francisco's best-kept secret: a vibrant neighborhood where tree-lined streets meet world-class dining, and your front door opens to endless adventure.
Your New Lifestyle Awaits
Imagine stepping out your door to Golden Gate Park's 1,000+ acres right at your fingertips. Weekend mornings call for strolling or biking past the Japanese Tea Garden, smelling the flowers at the Botanical Gardens, afternoon picnics at Hellman Hollow, and cultural afternoons at the de Young Museum or California Academy of Sciences. When you're ready for recreation, Lincoln Park, Presidio Golf Course, Beach Chalet fields, and Ocean Beach are just minutes away.
A Foodie's Paradise
Central Richmond has quietly become one of the city's most exciting culinary destinations. Stroll down Geary, Clement, and California Streets to discover neighborhood gems like the intimate Pizzetta 211, elegant Aziza, buzzing Hong Kong Lounge, and authentic Fiorella. Or grab a quick burrito at Gordo’s Taqueria followed by a scoop at Joes’ Ice Cream. From casual weeknight dinners to special celebrations, your perfect meal is always within walking distance.
Classic San Francisco Living
These iconic Richmond row houses line peaceful, tree-canopied streets that epitomize San Francisco charm. The neighborhood's rolling hills offer stunning glimpses of the city while maintaining an intimate, residential feel that locals treasure.
The Perfect Location
With the Presidio's natural beauty to the north and Golden Gate Park's endless amenities to the south, you're positioned at the heart of San Francisco's most desirable outdoor lifestyle. Yet Stonestown, the Financial District, and all of the city's attractions remain easily accessible.
Come see why people love the Central Richmond: a charming and culturally vibrant community + gateway to a convenient and adventurous San Francisco lifestyle.
Liz Corrigan Branham, J.D.
Get In Touch
Thank you!
Your message has been received. We will reply using one of the contact methods provided in your submission.
Sorry, there was a problem
Your message could not be sent. Please refresh the page and try again in a few minutes, or reach out directly using the agent contact information below.
Liz Corrigan Branham, J.D.
Kindred SF Homes
- DRE:
- #01304478
- Mobile:
- 415.613.8573
liz.branham@cityrealestatesf.com
www.lizbranham.com
Email Us